The Wind-Up Bird Chronicle
ねじまき鳥クロニクル
Tokyo, Japan
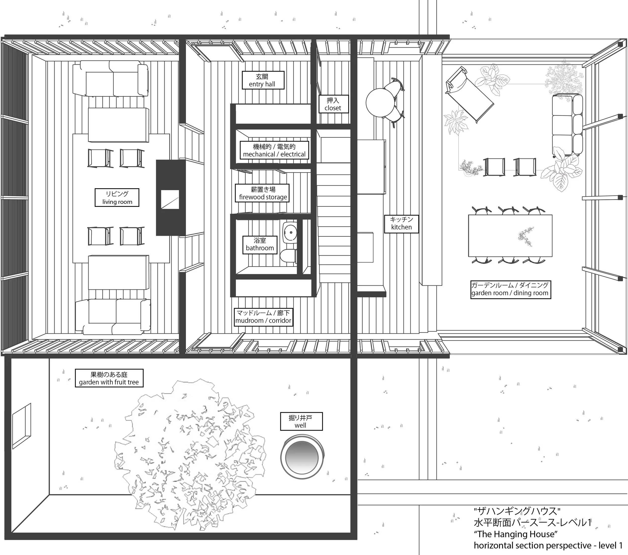
This project was inspired by Haruki Murakami’s The Wind-Up Bird Chronicle and focused on four key locations from the novel: the alley where Toru Okada searches daily for his lost cat, his apartment, the abandoned “hanging house,” and a fashion studio. Each setting prompted me to create illustrations that blended my architectural background with creative interpretation, visually capturing the essence of the book. While designing the "hanging house," I took some creative liberties, as I was drawn to the idea of designing an intriguing home.







